Modèle

SAYÔ

Un design audacieux pour une vie tout en confort avec la nature !

Avec ses toits en pente inversée, inspirés du modernisme Mid-Century, Sayô affirme une géométrie audacieuse. Le rythme de ses volumes et le contraste de ses matériaux et couleurs lui confèrent un style villégiature résolument contemporain. Décliné en noir ou en blanc, Sayô séduit par sa luminosité généreuse, ses vues ouvertes et son potentiel d’intégration harmonieux au paysage.

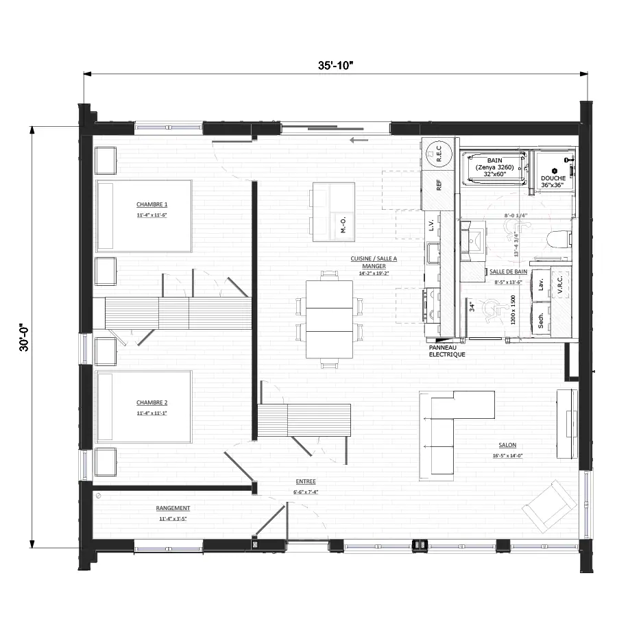
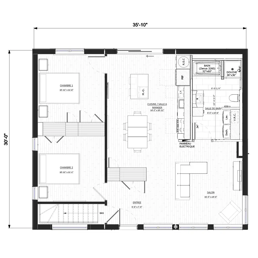
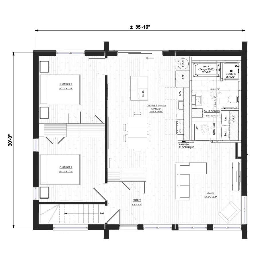
À l’intérieur, lumière et vue sont à l’honneur grâce à un séjour aux fenêtres panoramiques ouvert sur l’extérieur. La salle à manger et la cuisine accueillante avec îlot central et porte-patio deviennent le cœur de la maison, idéale pour partager de bons moments et accéder au jardin.

Côté pratique, le modèle comprend deux chambres avec penderies, une entrée fonctionnelle avec garde-robe et coin pour banquette, ainsi qu’une salle de bain complète avec bain, douche européenne indépendante, toilette et mobilier suspendu pour un entretien simplifié, sans oublier une buanderie intégrée.

Son noyau technique à valeur ajoutée est 100% préfabriqué intègre l’électricité, la ventilation, la plomberie ainsi que les équipements de la cuisine et de la salle de bain. Le résultat : un module rapide à installer sur chantier, permettant un gain de temps considérable et une connexion simplifiée aux services lors de l’installation sur vos fondations.

Enfin, adaptez votre maison à vos besoins avec un choix de fondation traditionnelle avec sous-sol ou fondation sur dalle de béton sur sol.

Le modèle Sayo combine design, fonctionnalité et confort moderne pour devenir l’endroit où vous aurez envie de vivre, chaque jour. Découvrez Sayô par Maisons Laprise.

Illustrations à titre indicatif seulement. Meubles et decorations non inclus.

En savoir plus
2
1
Non
1225 pi2

Extérieur et couleurs extérieures

Aménagement intérieur et cuisine

Salle de bain et buanderie

Fondation et margelle

Espace escalier ou rangement

Trouvez le modèle pour votre style de vie

Découvrez nos modèles de maison de série H.O.M

heartmap-markermagnifiercrossmenuarrow-leftarrow-right