Model

NAYÔ

The perfect blend of style and comfort
With its clean volumes and façade highlighted by an angled, graphic roofline, Nayô presents a uniquely distinctive style. Its architectural projection and interplay of materials give it a look inspired by Scandinavian minimalism. Available in black or white, it integrates harmoniously into its surroundings while confidently expressing its personality.

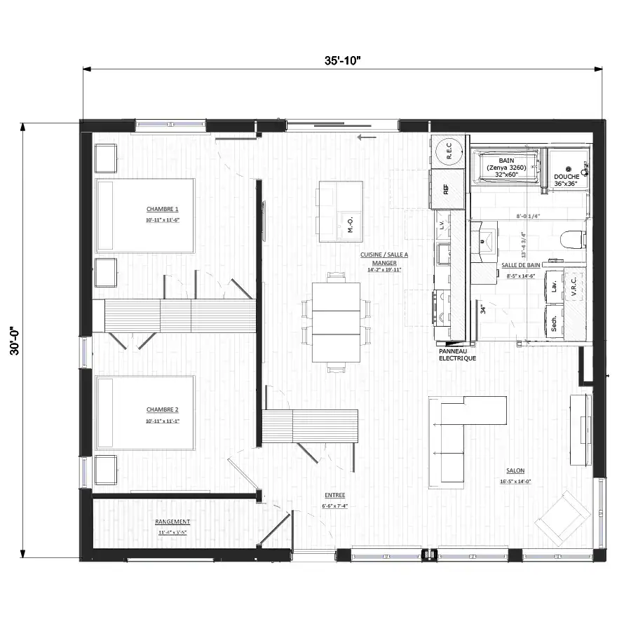
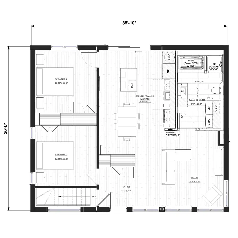
Inside, every space is designed to combine comfort and functionality—all at an optimized price. Enjoy a panoramic living room filled with natural light, along with a dining area and a welcoming kitchen with a central island. A patio door opens onto the terrace, creating an ideal space for cooking and entertaining.

The model includes two bedrooms with closets, a functional entryway with a wardrobe and space for a bench, and a full bathroom equipped with a bathtub, an independent European‑style shower, a toilet, and wall‑mounted cabinetry (vanity and linen storage) for easy maintenance—not to mention a built‑in laundry area.

Its prefabricated technical core consolidates electrical, ventilation, and plumbing systems, as well as the kitchen and bathroom equipment. The result: a module that installs quickly on-site, saving time and arriving ready‑to‑connect to services during installation.

Choose the foundation best suited to your lot: a traditional basement foundation or a concrete slab‑on‑grade.

Treat yourself to a home where design, comfort, and practicality come together to create a living space that is both modern and warm. Discover the Nayô by Maisons Laprise.

Illustrations for reference only. Furniture and décor not included.

Learn more
2
1
No
1050 ft2

Exterior and Exterior Colors

Interior Layout and Kitchen

Bathroom and Laundry Area

Foundation and Window Well

Staircase or Storage Space

Unique concept. Affordable designs.

Explore other HOM models, Same interior layout, same platform

heartmap-markermagnifiercrossmenuarrow-leftarrow-right