Model

VIVÔ 2.0

Discover the Vivô by Maisons Laprise - H.O.M Series Prefabricated Home Model – designed through a Highly Optimized Manufacturing process.
The intelligent evolution of home living. Welcome to a new era of accessible, sustainable housing designed for modern life. Vivô 2.0 is the result of forward‑thinking innovation founded on smart design principles that combine build quality, fast assembly, and cost control—without compromising comfort or aesthetics. One home, two identities: a vacation feel and an urban presence. Vivô 2.0 is designed with two distinct faces in a single home: a private façade and a panoramic façade. Rotate and position it on your lot however you choose. Whether nestled in nature, with its glazed façade facing the view, or placed in an urban setting with its discreet front, Vivô 2.0 adapts to its surroundings with both intelligence and style.

Highlights of the Vivô 2.0

.Modular design & simplified architecture
.An optimized approach for fast production, making it accessible to more people.
.Smart structure & high‑value included features
.Every element is designed to maximize quality and functionality—because every square foot and every dollar matters.
.Reduced footprint & sustainable performance
.Optimized dimensions and durable, eco‑responsible materials that allow you to build better, with less.
.A bright, open living space that charms instantly
.Panoramic living room
.Dining area with patio door
.Inviting kitchen with central island


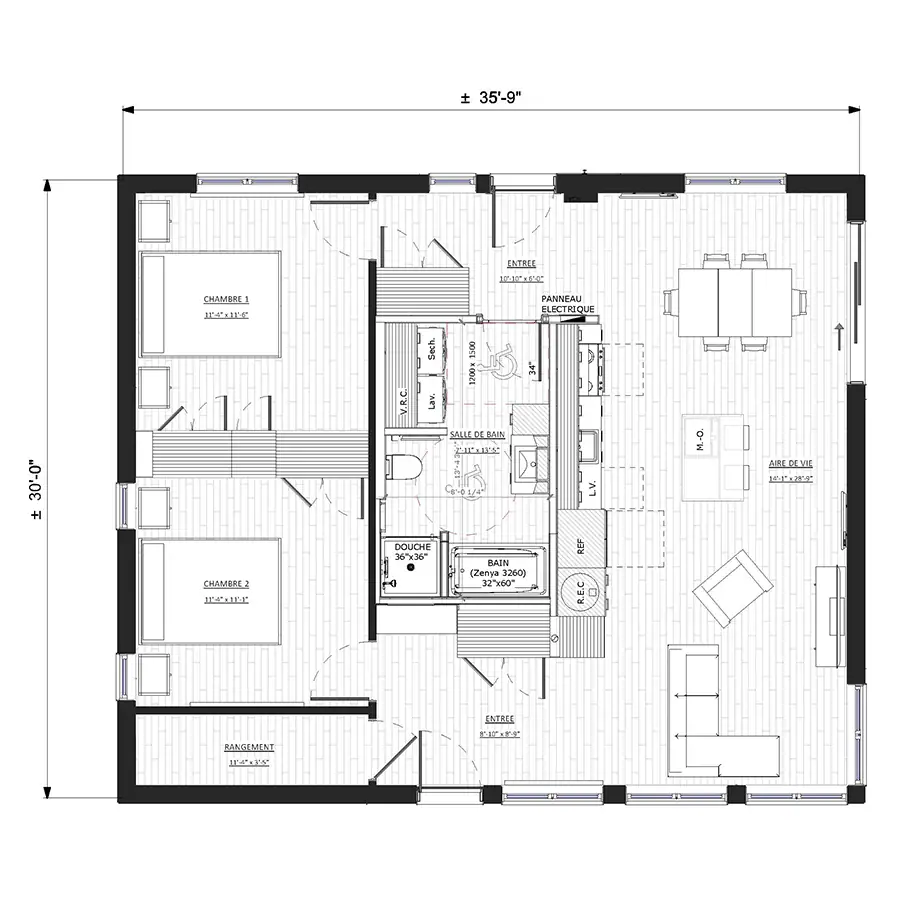
The layout includes:

Two bedrooms with closets
A functional entryway with wardrobe and bench nook
A full bathroom with bathtub, independent shower, toilet, and wall‑mounted cabinetry for easy maintenance
Integrated laundry area
Vivô 2.0 can be installed on a concrete foundation with basement or on a slab‑on‑grade foundation, depending on your needs.
Illustrations for reference only. Furniture and décor not included.

Learn more
2
1
No
1050 ft2

Exterior and Exterior Colors

Interior Layout and Kitchen

Bathroom and Laundry Area

Staircase or Storage Space

Unique concept. Affordable designs.

Explore other HOM models, Same interior layout, same platform

heartmap-markermagnifiercrossmenuarrow-leftarrow-right